Maison à étages - 15 Rue Renaud, Brownsburg-Chatham
Maison à étages
à vendre
15 Rue Renaud
,Brownsburg-Chatham
594 900$
- 27866599
- 1+1
- 2
- 13.8m x 11.65m
- 1603m2
Charmante maison à étages située dans un secteur recherché de Brownsburg-Chatham! Presqu'entièrement rénovée, elle offre un vaste salon avec foyer au gaz, une cuisine fonctionnelle avec grand garde-manger, deux chambres, une salle de bain moderne avec plancher chauffant, ainsi qu'un sous-sol plein de possibilités. Grand terrain de 17 254 pi², garage, patio couvert et superbe aménagement paysager avec pommier, saule pleureur et lilas.
Ou appelez maintenant
Maison à étages au cachet unique, presqu'entièrement rénovée!
Située dans un beau secteur de Brownsburg-Chatham, cette propriété pleine de charme a été soigneusement entretenue et modernisée au fil des ans.
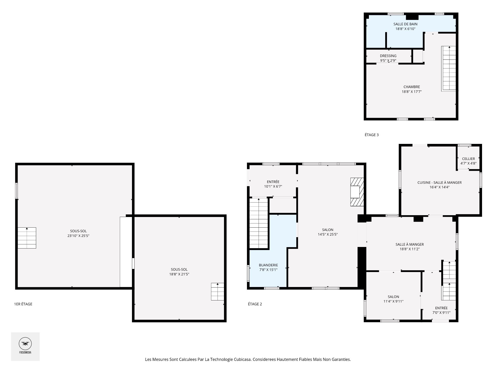
Au rez-de-chaussée, vous trouverez deux halls d'entrée, un immense salon avec foyer au gaz, une spacieuse salle à manger, une cuisine fonctionnelle avec grand garde-manger, une chambre à coucher ainsi qu'une salle d'eau avec laveuse et sécheuse.
À l'étage, la chambre principale s'accompagne d'une salle de bain élégante comprenant une douche avec plancher chauffant.
Le sous-sol offre de nombreuses possibilités d'aménagement selon vos besoins.
À l'extérieur, profitez d'un grand terrain de 17 254 pi², d'un garage, d'un patio couvert idéal pour les belles soirées d'été et d'un aménagement paysager comprenant un pommier, un saule pleureur, des lilas et plusieurs autres plantes.
Une maison où le cachet d'origine se marie parfaitement avec le confort moderne, dans un environnement paisible et recherché!
Améliorations apportées depuis l'achat:
Isolation des murs et de l'entretoit refait. Plancher remplacé en entier (céramique, bois et ardoise). Plancher chauffant ajouté dans la douche. Électricité et plomberie refaites. Peinture du toit refaite. Ajout de luminaires encastrés + remplacement des autres luminaires. Portes et fenêtres 2007 (maison originale). Gouttières refaites en façade. Installation de fermes de toit, contreplaqué, membrane et toit de tôle (2016). Joints de brique au dessus du toit de la galerie avant refaits. Galerie en avant et sur le côté refaites. Terrasse arrière refaite. Asphalte refaite. Réservoir mazout remplacé. Système Tri Énergie. Une rallonge a été faite en 2020 et les murs séparant de la maison originale ont été insonorisés.
Scolaire: 289$
Bâtiment: 341 000$
Construit en 1954
| Taxes municipales | 3 335$ |
| Taxes scolaires | 289$ |
| Total | 3 624$ |
Veuillez prendre note que l'information fournie par ce calculateur hypothécaire n'est pas destinée à servir pour des conseils légaux, comptables ou fiscaux, et ne devrait pas être utilisée à ces fins.
Maison à étages
Saint-Jérôme
741 36e Avenue
Maison à étages
Blainville
11 Rue des Jonquilles
Maison à étages
Saint-Colomban
130 Ch. de la Reine
Maison à étages au cachet unique, presqu'entièrement rénovée!
Située dans un beau secteur de Brownsburg-Chatham, cette propriété pleine de charme a été soigneusement entretenue et modernisée au fil des ans.
Au rez-de-chaussée, vous trouverez deux halls d'entrée, un immense salon avec foyer au gaz, une spacieuse salle à manger, une cuisine fonctionnelle avec grand garde-manger, une chambre à coucher ainsi qu'une salle d'eau avec laveuse et sécheuse.
À l'étage, la chambre principale s'accompagne d'une salle de bain élégante comprenant une douche avec plancher chauffant.
Le sous-sol offre de nombreuses possibilités d'aménagement selon vos besoins.
À l'extérieur, profitez d'un grand terrain de 17 254 pi², d'un garage, d'un patio couvert idéal pour les belles soirées d'été et d'un aménagement paysager comprenant un pommier, un saule pleureur, des lilas et plusieurs autres plantes.
Une maison où le cachet d'origine se marie parfaitement avec le confort moderne, dans un environnement paisible et recherché!
Améliorations apportées depuis l'achat:
Isolation des murs et de l'entretoit refait. Plancher remplacé en entier (céramique, bois et ardoise). Plancher chauffant ajouté dans la douche. Électricité et plomberie refaites. Peinture du toit refaite. Ajout de luminaires encastrés + remplacement des autres luminaires. Portes et fenêtres 2007 (maison originale). Gouttières refaites en façade. Installation de fermes de toit, contreplaqué, membrane et toit de tôle (2016). Joints de brique au dessus du toit de la galerie avant refaits. Galerie en avant et sur le côté refaites. Terrasse arrière refaite. Asphalte refaite. Réservoir mazout remplacé. Système Tri Énergie. Une rallonge a été faite en 2020 et les murs séparant de la maison originale ont été insonorisés.
